中古一戸建て

下松市琴平町2丁目の中古戸建[物件特徴]

 

値下げ物件

掲載情報更新日:2026年04月10日 次回更新予定日:2026年04月24日

3,690万円

月々のお支払い例


万円


計算

※ 月々のお支払例は目安の試算となりますので、金融機関や商品によって借入金額の条件は異なります。詳しくは店舗までお問合わせください。

所在地

下松市琴平町2丁目

交通

JR山陽本線『下松』 徒歩13分 (約1040m)

平坦地。駐車場4台可(車種による)。小屋裏収納あり。ウッドデッキのある庭。
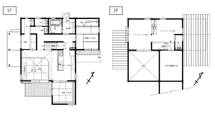
【間取り】
1Fの間取りです

【間取り】
1Fの間取りです

【外観】
西向きの玄関です

【外観】
西向きの玄関です

物件価格

3,690万円

月々のお支払い例

1,659.77

※金利1.20% 借入金額:物件価格、借入期間35年

物件の特徴

主な特徴

2階建

アピールポイント

平坦地で駐車場は並列4台可能(車種による)。吹き抜けのあるリビングは明るく開放感があります。モダンな印象の木造建築です。ウッドデッキのある庭にリビングと和室からつながりゆったりと暮らしを楽しめます。

物件概要

価格 3,690万円 間取り 4LDK
物件種別 中古一戸建て
所在地 山口県下松市琴平町2丁目
アクセス JR山陽本線『下松』 徒歩13分 (約1040m)
建物面積 117㎡ 駐車場 なし
築年月 2019年(平成31年)02月築
建物構造 木造 2階建 工法
主要採光 バルコニー
保証・評価
リフォーム
土地面積 公286.07㎡(86.53坪) 接道
私道 セットバック
地目 宅地 地勢
権利 所有権
都市計画 市街化区域
用途地域 1種住居
建ぺい/容積率 60% / 200% 土地国土法
許可番号 建築基準法
法令制限
小学区 下松小学校 徒歩14分 (約1070m) 中学区 下松中学校 徒歩10分 (約760m)
現況 居住中 引渡 相談
その他費用
備考
物件番号 4430837 取引態様 媒介

電話で問合せ

0833-44-7712

定休日:水曜日、祝日
営業時間:9:00~18:00

物件番号をお伝えください

物件番号

4430837

【取扱い店舗】ハウスドゥ 光取扱い店舗情報
ナビ女性画像

【取扱い店舗情報】

ハウスドゥ 光
取扱会社:高山石油ガス株式会社
所在地:〒743-0021 山口県光市浅江5丁目14-18
電話番号:0833-44-7712 FAX:0833-72-7896
免許番号:山口県知事(1)第3902号
所属団体:(公社)山口県宅地建物取引業協会会員
(公社)全国宅地建物取引業保証協会会員
中国地区不動産公正取引協議会加盟
定休日:水曜日、祝日
営業時間:9:00~18:00

もっとたくさん物件がみたい!という方へ

店頭で

店頭ではHPに掲載できない物件を併せて
707件をご案内できます!

Webで

ご希望にマッチした物件や、新着・値下げ情報を
即日メールにてお届けします!

ページトップ

ページトップ